Planinska-kuca-za-odmor-Golija-Studio-Alfirevic-arhitektura-arhitekta-01

Planinska kuća za odmor na Goliji

Kategorija: Arhitektura, Stambeni objekat
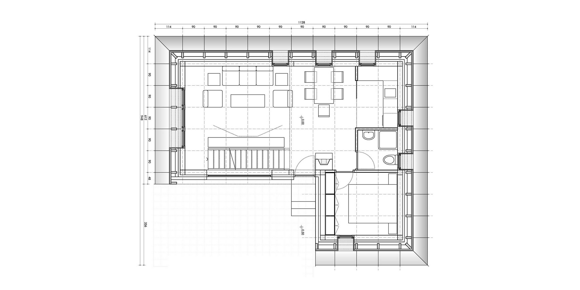
Površina: 70m2
Lokacija: Golija, Srbija
Klijent: Privatno lice
Status: Idejno rešenje, 2008.
Autor: Đ. Alfirević

Planinska kuća je projektovana za odmor u brdsko-planinskom predelu, namenjena kako za povremeni, tako i za stalni boravak. Svojim oblikom i materijalizacijom, kuća se skladno uklapa u okolni pejzaž, pružajući savremeno arhitektonsko rešenje prilagođeno prirodnom okruženju planine. Objekat je osmišljen u formi dva asimetrična volumena koja se međusobno preklapaju, stvarajući dinamičnu kompoziciju prostora. Ovakva forma kuće, sa naglašenim A-krovom, omogućava optimalno korišćenje unutrašnjeg prostora, dok istovremeno pruža zaštitu od spoljašnjih vremenskih uslova. Krovna konstrukcija, izrađena od drvenih greda, obložena je tamnim crepovima, čime se postigla vizuelna povezanost sa prirodnim elementima okruženja. Unutrašnji prostori organizovani su sa posebnim akcentom na funkcionalnost i udobnost, sa jasno definisanom dnevnom i noćnom zonom. Prostrani dnevni boravak, otvorenog plana, pruža direktnu vizuelnu komunikaciju sa spoljašnjim okruženjem zahvaljujući velikim prozorskim površinama koje propuštaju obilje prirodne svetlosti. Kamin, centralno postavljen unutar prostora, stvara prijatan i topao ambijent tokom hladnih zimskih meseci. Noćna zona obuhvata udobne spavaće sobe, smeštene tako da obezbeđuju maksimalnu privatnost i mir korisnicima, dok su pomoćne prostorije diskretno integrisane u strukturu kuće. Pri projektovanju su korišćeni ekološki prihvatljivi materijali, sa posebnim akcentom na termoizolaciju i energetsku efikasnost objekta. Eksterijer kuće ističe se minimalističkom estetikom, sa fasadom obloženom vertikalnim drvenim lamelama, koje unose prirodnu toplinu i teksturu u savremeni dizajn objekta. Ovaj arhitektonski izraz postignut je pažljivim izborom materijala i proporcija, kako bi se stvorio sklad između modernog dizajna i tradicionalnih elemenata, karakterističnih za planinske predele.